WSPÓŁPRACA SCIA ENGINEER Z ALLPLAN ENGINEERING
Allplan Engineering i Allplan Precast są programami firmy Nemetschek służącymi do modelowania konstrukcji w 3D oraz tworzenia dokumentacji technicznej. Głównym obszarem działań obu programów są konstrukcje żelbetowe oraz prefabrykowane.
Dzięki zastosowaniu formatu IFC wymiana danych z innym oprogramowaniem jest bardzo łatwa, wystarczy zapisać model w tym formacie i zaimportować go do dowolnego oprogramowania z certyfikatem IFC.
MODEL STWORZONY W PROGRAMIE ALLPLAN
Poniższy model został opracowany w Allplan Engineering przy użyciu standardowych komponentów żelbetowych, takich jak belki, słupy i płyty.
W celu rozwiązania szczegółów konstrukcyjnych i przygotowania do produkcji, model został następnie wysłany do Allplan Precast, gdzie płyty zostały przekształcone w prefabrykowane elementy podłogowe, a kolumny zostały wyposażone we wszystkie niezbędne akcesoria do szybkiego montażu ostatecznej konstrukcji.
Obliczenia modelu można wykonać na dowolnym etapie projektu, niezależnie od tego, czy jest to faza koncepcyjna, czy końcowa.
W naszym przykładzie wyślemy gotowy model do SCIAEngineer.

SPRAWDZENIE MODELU W SOLIBRI
Zanim zaimportujemy model do Scia Engineer, dokonamy szybkiego sprawdzenia w programie Solibri

3.3. IMPORT MODELU DO SCIA ENGINEER
Plik może zostać wczytany do oprogramowania SCIA Engineer. Dokonaj sprawdzenia aktualności tabeli konwersji materiałów (na wypadek gdyby nazwy materiałów były nietypowe).

Elementy prefabrykowane składają się z Obiektów 3D, dlatego konieczne jest częściowe zmodyfikowanie modelu. Konwersja na obiekty obliczeniowe i ich wyrównanie są zadaniami, które należy wykonać w celu przeprowadzenia prawidłowych obliczeń.
OPRACOWANIE MODELU
Wszystkie elementy, z wyjątkiem bloków fundamentowych, są konwertowane na obiekty obliczeniowe. Możesz tworzyć dodatkowe warstwy, aby ułatwić sobie pracę – jest to już indywidualna kwestia.
Najpierw musimy przyjrzeć się konstrukcji ramy i przekonwertować ją na obiekty obliczeniowe.


Kolejnym krokiem jest wyrównywanie węzłów za pomocą zestawu narzędzi Przybornika BIM

ELEMENTY STROPOWE
Elementy stropowe są prawdopodobnie zaprojektowane w oparciu o ich krytyczne przekroje w płycie, dlatego obciążenie przyłożymy do nich przy pomocy paneli. Dzięki nim program rozłoży obciążenie powierzchniowe pochodzące od płyt na odpowiednie belki konstrukcji nośnej.


WYNIKI OBLICZEŃ
Poniższe rysunki ilustrują odkształcenia i siły wewnętrzne dla jednego z przypadków obciążeniowych.


WYKORZYSTANIE WYNIKÓW OBLICZEŃ W ALLPLAN
Sposób radzenia sobie ze zmianami geometrycznymi jest już omówiony w przypadku użycia SCIA Engineer i Tekla.
Solibri Model Checker pozwoli nam porównać oryginalny model z modelem zmienionym i utworzyć krótką listę wprowadzonych zmian. W programie Allplan wprowadzamy wszystkie niezbędne poprawki mając na uwadze szczegóły konstrukcyjne i wymagania techniczne.
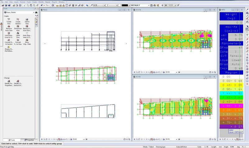
Niektóre wyniki obliczeń możemy wykorzystać bezpośrednio w Allplan. Obliczone zbrojenie teoretyczne jest jednym z nich.
Wyniki obliczeń zbrojenia teoretycznego w postaci izolinii otrzymane w programie SCIA możesz zapisać jako plik ASF i zaimportować je do programu Allplan
Wartości te są wyświetlane na obiektach i stanowią podstawę dla konstruktora przy projektowaniu zbrojenia rzeczywistego.

Na przykład możemy wprowadzić warstwę siatki (Q257 = Ø7/Ø7/150/150 mm).
Możesz dostrzec zmianę schematu kolorów i wskazać obszary, które muszą być objęte dodatkowym zbrojeniem.

Wykorzystanie wyników obliczeń podczas wstawiania zbrojenia może zaoszczędzić mnóstwo czasu, a także zredukować koszty i zużycie materiałów.